Immenhausen:
jetzt so flexibel wie das Familien leben
Objekt-Nr.: 34376 Immenhausen Berlinerstraße 35 ELK EH 189

ELK EH

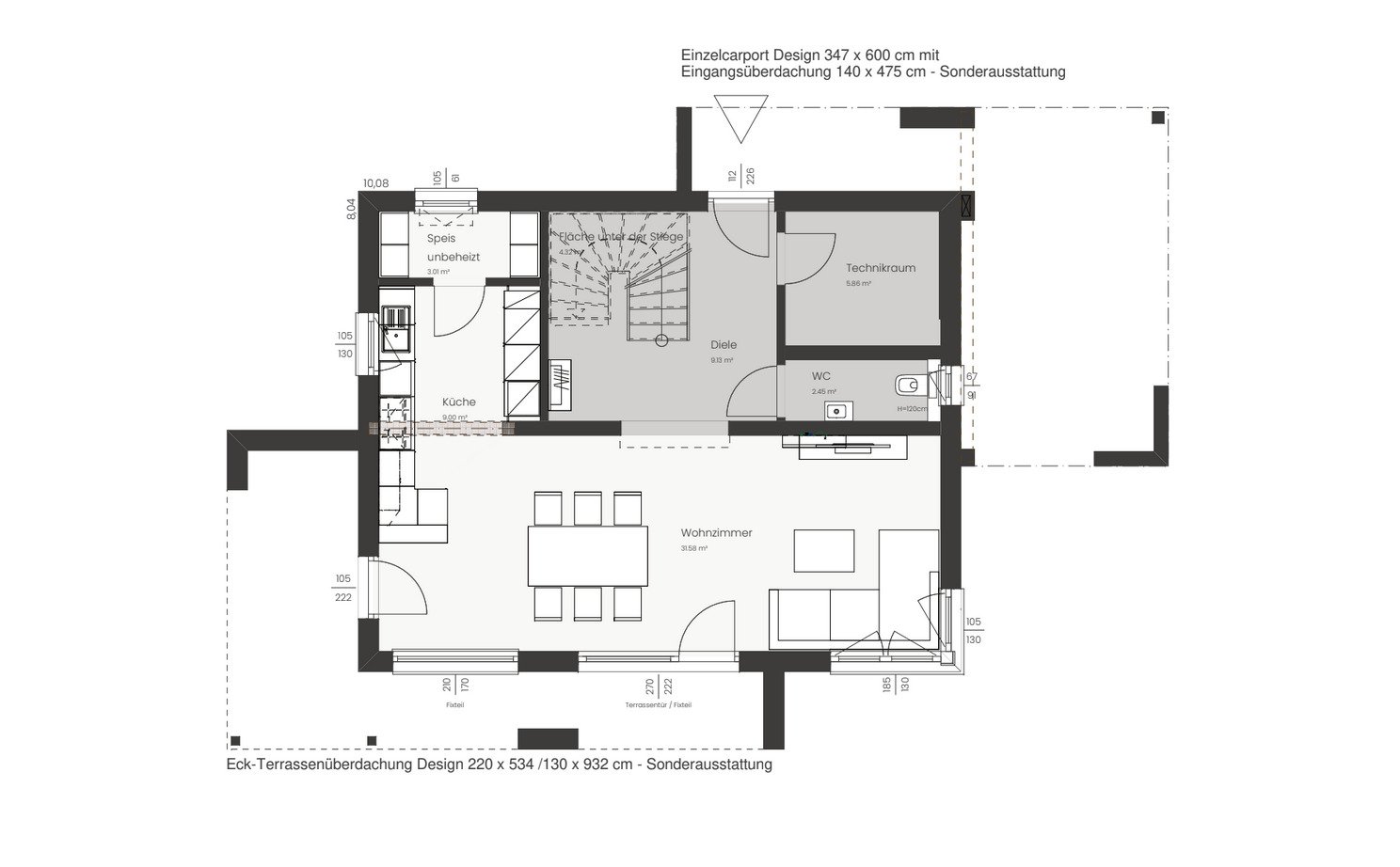
ELK EH Grundriss Erdgeschoss

ELK EH Grundriss Obergeschoss

Vorlage Kontakt Anzeigen

ELK Fichten für ein Haus

ELK Qualität

ELK Haustechnik

ELK Klimaschutz

ELK Markenbotschafter Felix Neureuther

ELK Vorteile im Überblick

ELK In 6 Schritten zu Ihrem ELK Haus

ELK Premium-Thermo-Vitalwand

ELK Familienglück

ELK Innen Beispiel

ELK Innen Beispiel

ELK Innen Beispiel

ELK Innen Beispiel

ELK Bad Beispiel

ELK Bad Beispiel

ELK Bad Beispiel

ELK Treppe Beispiel

ELK Treppe Beispiel

ELK Treppe Beispiel

ELK Höchste Kundenzufriedenheit

ELK INNOVATIONSPREIS

ELK Deutschlands Beste Kundenberater

ELK TOP Musterhäuser

ELK Besonders Nachhaltig

ELK BDF

ELK QDF

ELK Blauer Engel

ELK RAL Gütezeichen

ELK KLIMA Aktiv

ELK Ibo

ELK Certified Brand



































Preis:
355.000 €
Wohnfläche ca.:
180 m²
Zimmeranzahl:
5
Unterschiedliche Fassadengestaltungen und Fensterformate sowie die Eingangs- und Terrassenüberdachung verleihen dem ELK Einfamilienhaus 189 schon von außen eine besondere Wirkung. Dank drei verschiedener Dachformen lässt es sich zudem einfach an den persönlichen Geschmack anpassen. Im Erdgeschoss nimmt der großzügige Wohn-, Ess- und Kochbereich die Hälfte der quadratischen Grundfläche ein. Oben befindet sich neben zwei Kinderzimmern das große Schlafzimmer mit einem eigenen, durch die Ankleide begehbaren Wellness-Badezimmer.
Haustyp: Einfamilienhaus
Etagenanzahl: 1
Provisionspflichtig: nein
Anzahl Schlafzimmer: 4
Anzahl Badezimmer: 1
Gäste-WC: ja
Dachboden: ja
Qualität der Ausstattung: gehoben
Baujahr: 2023
Bauphase: Haus in Planung (projektiert)
Zustand: Haus in Planung (projektiert)
Für Richtigkeit und Vollständigkeit der Angaben kann keine Gewähr bzw. Haftung übernommen werden. Zwischenverkauf und Irrtümer vorbehalten.
Wir weisen auf unsere Allgemeinen Geschäftsbedingungen hin. Durch weitere Inanspruchnahme unserer Leistungen erklären Sie die Kenntnis und Ihr Einverständnis.
Das könnte Ihnen auch gefallen






















































































